売買 【大正の風情漂う家】畑付きで自給自足の暮らしも楽しめる
- 所在地
- 福島県福島市松川町水原字障子38
- 物件種別
- 土地・物件
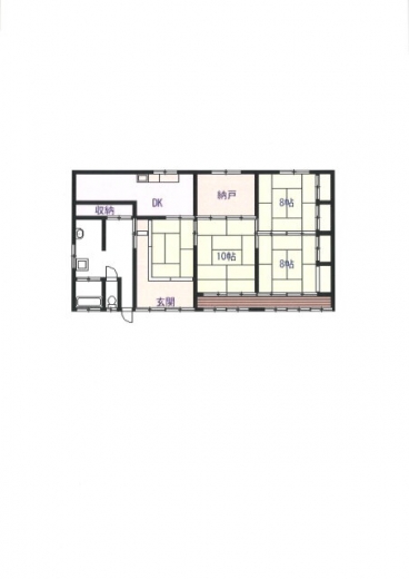
- 間取り
- 4DK
- 価格
- 売買676万円
POINT
- 家庭菜園やガーデニングが楽しめ、自然に囲まれた生活を実現できます。
- 一日中、自然光が家全体に差し込み、明るく快適な生活環境を提供します。
- 周囲に自然が広がり、静かな環境でリラックスした暮らしを満喫できます。
- 複数の車を停められるスペースがあり、車を使う家庭にも便利です。
この空き家は100年以上の歴史を持ち、穏やかな田舎の風情を感じさせます。日当たりの良い庭と畑があり、家庭菜園やガーデニングを楽しむことができ、自然との調和を大切にした暮らしが魅力です。この空き家は、リノベーションを施してカフェやワークスペースとして活用することで、地域の魅力を引き出し、訪れる人々に心地よい時間を提供する場として再生が可能です。
この物件についているタグ
この物件をシェアする
3分で完了
アキカツローン
購入シミュレーションをしてみる
関連サイトより、ローンの簡単シミュレーションができます。空き家の購入費用から、リフォーム・修繕費用など、不動産関連の様々な資金ニーズに対応可能です。
物件の特徴 POINT
外観
-
青空に映える趣深い大正時代の平家住宅
大正時代に建てられた平家住宅。広いガラス窓から明るい光が差し込みます。
-
伝統的な屋根と自然が調和する広々とした住まい
伝統的な屋根と豊かな自然に囲まれた、広々とした落ち着いた住まい。
基本情報 INFO
| 交通 | JR東北本線「松川」駅 7.5km 車 11分 |
|---|---|
| 所在地 | 福島県福島市松川町水原字障子38 |
| 区分 | 売買 |
| 価格 | 売買676万円 |
| 管理費等(月) | - |
| その他費用 | - |
| 現況 | 空き家 | 引渡し 可能時期 |
相談 |
|---|---|---|---|
| 土地権利 | - | 地目 | - |
| 物件種別 | 土地・物件 | 間取り | 4DK |
| 構造 | 木造平家建て | 築年月 | 1915年(大正4年) |
| 土地面積 | 1,092.040㎡(330.350坪) | 建物面積 | 112.390㎡(34.000坪) |
| 上水道 | - | 下水道 | 個別浄化 |
|---|---|---|---|
| ガス | プロパンガス | 電気 | 有 |
| その他設備 | 給湯・洗髪洗面化粧台・浄化槽・側溝・BS端子・日当り良好・畑 | ||
| 備考 | トイレ、浴室の一部リフォーム済み。 居宅以外に物置、倉庫あり。 敷地面積は、宅地部分574.04㎡(173.64坪)、 畑部分518㎡(156.69坪) |
||
周辺環境 MAP
| 小学校 | 福島市立松川小学校区 | 中学校 | 福島市立松陵中学校区 |
|---|---|---|---|
| 買い物 | スーパー 7.8km コンビニ 5.6km |
その他施設 | 小学校 5.6km 中学校 5.4km |
この物件をシェアする
3分で完了
アキカツローン
購入シミュレーションをしてみる
関連サイトより、ローンの簡単シミュレーションができます。空き家の購入費用から、リフォーム・修繕費用など、不動産関連の様々な資金ニーズに対応可能です。
この物件がある街情報 CITY
四季折々の美景と果実、自然と歴史が息づくまち 福島県福島市
福島県福島市は、東北地方の玄関口として、歴史と自然が織りなす魅力的な都市です。福島市は、豊かな果物の産地として全国に知られ、特に桃やリンゴが有名です。また、四季折々の風景が美しく、磐梯山や吾妻山を望むことができる自然環境に恵まれています。市内には数多くの温泉地が点在し、訪れる人々に癒しを提供しています。福島市は、交通アクセスも優れており、新幹線や高速道路を利用して首都圏からのアクセスも便利です。近年では、住みやすさや自然の豊かさを求めて移住する人々が増えており、都市と田舎の調和が取れた生活環境が魅力です。福島市は、伝統と現代が共存するまちとして、今もなお新たな価値を創造し続けています。
- 総人口
- 266,021人 (2024年6月現在)
- 世帯数
- 125,007世帯 (2024年6月現在)
- 面積
- 767.720K㎡
補助一覧表
| 補助 | 補助率 | 上限額 | 併用可否 | 詳細リンク |
|---|---|---|---|---|
| リフォーム補助金 | 要した費用の2分の1(1,000円未満の端数は切り捨て) | 150万円 |
空き家に関連がある支援制度を紹介しています。詳細等につきましては、各事業実施主体へご確認ください。